Station de vidange
Caractéristiques
- Une structure en acier peint renforcie pour une sécurité accrue et une durée de vie prolongée
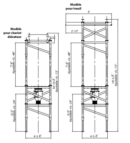
- Dimensions des SACS :
- Dimension verticale maximale : 74"
- Largeur du sac maximale : 46,5"
- Diamètre de la goulotte : 18"
- Longueur de la goulotte jusqu'à 24"
- Capacité de 2 tonnes métriques
- Membrane d'étanchéité ultra robuste supportant le sac pour une étanchéité parfaite
- Porte d'accès avec fermoirs à manutention rapide sans outils
- Conduite flexible se recordant à un adaptateur universel. Celui-ci peut ensuite se raccorder à une vanne rotative, un doseur ou tout autre équipement requis par le procédé
- Croix de levage pour prise facile avec un chariot élévateur
- Surfaces en contact avec le média en acier inoxydable 304
- Assemblage facile par boulonnage
Options
- Vanne à diaphragme permettant une ouverture du sac tout en conservant la porte d'accès fermée
- Chariot et palan motorisés pour opération sans chariot élévateur
- Prise pour dépoussiéreur
- Prise pour détecteur de niveau
- Système de massage des sacs
- Montage de la station sur cellule de charge
Liste de prix
| Modèle |
Prix |
| Chariot élévateur |
Contactez-nous |
| Treuil |
Contactez-nous |
+1 450 462-5959
info@leapengineeredproducts.com
© 2009, Tous droits réservés
LEAP Engineered Products - Une division de CON-V-AIR inc.