Big Bag Unloaders
Specifications
- Painted reinforced steel structure for longer life and safety
- Acceptable bag sizes :
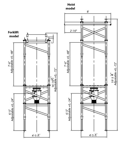
- Maximum height : 74 inches
- Maximum width : 46,5 inches
- Spout diameter : 18 inches
- Spout length : up to 24 inches
- Capacity: 2 metric ton
- Heavy duty bag support sealing membrane guaranteeing a perfect seal
- Access door with tool less opening mechanism
- Flexible line with universal adaptor to connect with other process equipment such as a rotary airlock or a screw feeder
- Forklift compatible bag handling system
- Stainless steel 304 contact parts
- Bolted assembly
Options
- Iris valve allowing for bag opening without having to open the access door
- Electric hoist and carriage allows for bag handling without the use of a lift truck
- Dust collectors connection
- Level sensor port
- Bag Jostlers
- Load cell mounting
Price List
| Model |
Price |
| Forklift |
Call Factory |
| Hoist |
Call Factory |
+1 450 462-5959
info@leapengineeredproducts.com
© 2009, All rights reserved
LEAP Engineered Products - A division of CON-V-AIR Inc.